明石市二見町福里 中古戸建
土山駅徒歩18分、東二見駅徒歩18分、角地、築浅物件、小学校徒歩3分、買い物施設徒歩圏内にあり!
価格
3680万円
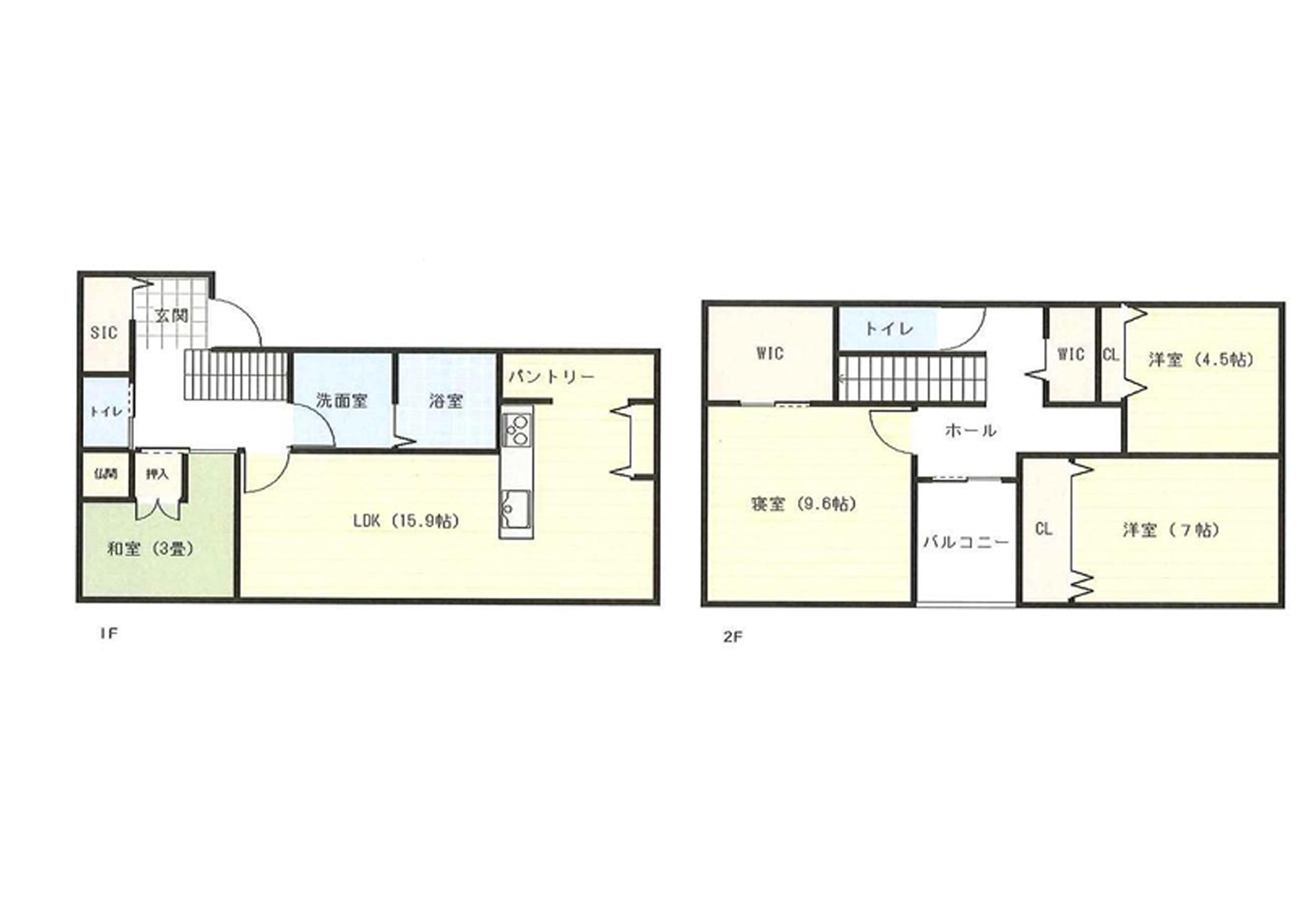
間取り
4LDK
建物面積
111.32㎡
土地面積
128.45㎡
交通
JR神戸線(神戸~姫路)「土山駅」徒歩18分
山陽電鉄本線「東二見駅」徒歩17分
兵庫県明石市二見町福里140-12
JR神戸線(神戸~姫路)「土山駅」徒歩18分
山陽電鉄本線「東二見駅」徒歩17分
山陽電鉄本線「東二見駅」徒歩17分
二見北小学校 約230m
二見中学校 約1300m
コーナン二見店 約750m
スーパーマルハチ二見店 約750m
この物件に関するお問い合わせ
二見中学校 約1300m
コーナン二見店 約750m
スーパーマルハチ二見店 約750m
ー物件概要ー
物件名
明石市二見町福里 中古戸建
所在地
兵庫県明石市二見町福里140-12
価格
3680万円
交通
JR神戸線(神戸~姫路)「土山駅」徒歩18分
山陽電鉄本線「東二見駅」徒歩17分
山陽電鉄本線「東二見駅」徒歩17分
築年月
2017年11月
間取り
4LDK
土地計測方法
土地面積
128.45㎡
小学校区
二見北小学校
中学校区
二見中学校
建物計測方法
公簿
建物面積
111.32㎡
地勢
地目
宅地
都市計画
市街化区域
用途地域
一種住居
建ぺい率
60%
容積率
200%
その他法令上の制限
接道状況
角地
建築条件
販売区画数
1
再建築
現況 / 引渡時期
居住中/相談
セットバック
無
私道負担
無
取引態様
道路
接道状況
角地
セットバック
無
私道負担
無
接道方向
道路幅員
道路種別
道路接面
接道方向
道路幅員
道路種別
道路接面
接道方向
道路幅員
道路種別
道路接面
その他
ー建物・設備ー
新築/中古
中古
構造
木造
建築番号
建物面積 計測方法
公簿
建物面積
建物階数 地上
2
建物階数 地下
各階面積 1階
55.64
各階面積 2階
55.68
各階面積 3階
その他 フロア
建築年月
2017年11月
新築/中古
中古
MAP (物件によっては正確な位置が反映されない場合があります。)
[gmap address=”兵庫県明石市二見町福里140-12″]
他にも多数の物件を取り揃えております 。お気軽にお問い合わせください。
条件の近い物件
最近見た物件
静かで暮らしやすい二見町福里。家族みんなが快適に暮らせる街!明石市二見町福里 中古戸建
兵庫県明石市二見町福里521-9
JR神戸線(神戸~姫路)「土山駅」徒歩6分
山陽電鉄本線「西二見駅」徒歩25分




