江井ヶ島駅徒歩9分!明石市大久保町江井島 新築戸建
山陽電鉄本線「江井ヶ島」駅徒歩9分!駐車スペース2台分あり!
価格
3280万円
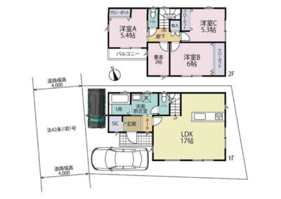
間取り
3LDK
建物面積
88.80㎡
土地面積
94.04㎡
交通
山陽電鉄本線「江井ヶ島駅」徒歩9分
兵庫県明石市大久保町江井島1番3
山陽電鉄本線「江井ヶ島駅」徒歩9分
江井島小学校 徒歩18分
江井島中学校 徒歩25分
マルアイ中八木店 徒歩12分
この物件に関するお問い合わせ
江井島中学校 徒歩25分
マルアイ中八木店 徒歩12分
ー物件概要ー
物件名
明石市大久保町江井島 新築戸建
所在地
兵庫県明石市大久保町江井島1番3
価格
3280万円
交通
山陽電鉄本線「江井ヶ島駅」徒歩9分
築年月
2026年4月
間取り
3LDK
土地計測方法
公簿
土地面積
94.04㎡
小学校区
江井島小学校
中学校区
江井島中学校
建物計測方法
公簿
建物面積
88.80㎡
地勢
平坦
地目
宅地
都市計画
市街化区域
用途地域
一種住居
建ぺい率
60%
容積率
160%
その他法令上の制限
接道状況
一方
建築条件
販売区画数
1
再建築
現況 / 引渡時期
空家/相談
セットバック
私道負担
無
取引態様
道路
接道状況
一方
セットバック
私道負担
無
接道方向
北西
道路幅員
4m
道路種別
公道
道路接面
7.2m
接道方向
道路幅員
道路種別
道路接面
接道方向
道路幅員
道路種別
道路接面
その他
ー建物・設備ー
新築/中古
新築
構造
木造
建築番号
建物面積 計測方法
公簿
建物面積
88.8
建物階数 地上
2
建物階数 地下
各階面積 1階
各階面積 2階
各階面積 3階
その他 フロア
建築年月
2026年4月
新築/中古
新築
MAP (物件によっては正確な位置が反映されない場合があります。)
[gmap address=”兵庫県明石市大久保町江井島1番3″]
他にも多数の物件を取り揃えております 。お気軽にお問い合わせください。




