明石市大久保町山手台1丁目 全2区画 新築戸建
乾太くん、食洗器、浴室乾燥機、スマートキー付き!
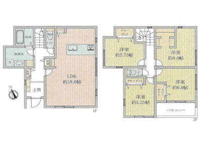
2号棟 147.62㎡ 3880万円
高丘西小学校 徒歩12分
高丘中学校 徒歩18分
マルアイ 徒歩10分
コスモス 徒歩9分
めぐみの郷 徒歩7分
「広さにくつろぎ、収納にゆとり。19帖LDK+パントリー」
19帖の広さを確保したLDKは、家族が集まってもゆったりと過ごせる開放感が魅力です。大きめのソファやダイニングテーブルを配置しても動線にゆとりがあり、お子さまがリビングで遊ぶ様子を見守りながら、親御さんはくつろぎの時間を楽しめます。自然と家族が顔を合わせ、会話が生まれる、暮らしの中心となる空間です。
キッチンに隣接したパントリーは、食品ストックや調理家電、日用品の収納に大活躍。買い置きが増えても置き場所に困らず、キッチン周りを常にすっきり保てます。生活感を上手に隠せることで、LDK全体がより広く、より美しく感じられるのも嬉しいポイント。
「広さ」と「収納力」を兼ね備えたLDKは、忙しい毎日の家事をサポートしながら、家族のくつろぎ時間をより豊かなものにしてくれます。子育て世帯はもちろん、来客の多いご家庭にもおすすめできる、快適性の高い間取りです。
「時短・快適・安心。暮らしを支える充実設備」
ガス衣類乾燥機「乾太くん」を搭載。天候や時間帯を気にせず、洗濯物を短時間でふんわり乾かせます。部屋干しのニオイや花粉対策にも効果的で、忙しい共働き世帯や子育て世帯の強い味方です。
キッチンには食洗器を設置。食後の後片付けにかかる時間と手間を大幅に軽減し、家族との団らん時間や自分の時間をしっかり確保できます。手洗いよりも節水効果が期待できる点も、家計にやさしいポイントです。
浴室には浴室乾燥機を備えており、雨の日の洗濯や湿気対策、冬場の入浴前の予備暖房にも活躍。カビの発生を抑え、清潔で快適なバスルーム環境を保てます。
玄関にはスマートキーを採用。鍵を取り出す手間なくスムーズに施解錠でき、荷物の多い日やお子さまを連れての外出時も安心。防犯面にも配慮された、現代のライフスタイルに合った設備です。
「通学も買い物も安心。子育て家族にやさしい立地」
小学校や中学校が近く、お子さまの通学時間が短いのが大きな魅力。毎日の登下校も無理がなく、初めての通学でも保護者の目が届きやすい安心感があります。朝の準備に追われがちな子育て世帯でも、時間にゆとりが生まれます。
また、スーパーやドラッグストアなどの買い物施設が徒歩圏内にそろっているため、仕事帰りや保育園・学校の送り迎えのついでにサッと買い物が可能。急な「これが足りない」にもすぐ対応でき、家事の負担を軽減してくれます。
学校・買い物施設が近いことで、移動時間が短縮され、家族で過ごす時間が自然と増えるのも嬉しいポイント。お子さまの成長を身近に感じながら、安心して長く暮らせる、子育て世帯にぴったりの住環境です。




